










Tuotekoodi (SKU): 41005024
EAN: 6424110251086
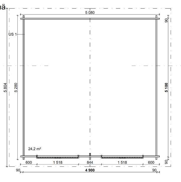
LP Garden U-XXL on perinteinen ja tyylikäs 25 m² vinoumpiseinäinen pihavarasto. Sopii hyvin suurille tavaroille ja kausisäilytykseen sekä harrastetilaksi. Kaksi reilunkokoista pariovea tekee käytöstä vaivatonta.
Punahonka rakennusmateriaalina: Lapin punahongan kestävyys perustuu hitaaseen kasvuun, jonka voi nähdä vuosirenkaista, jotka ovat tiheät. Käyttämämme lapin punahonka on huomattavasti kestävämpi rakennusmateriaalina kuin etelässä nopeasti kasvanut mänty.
Pitkät räystäät – Suojaa seinät lumelta ja sateelta: LP Garden -pihavaraston räystäät ja päädyt ovat pitkät. Pitkien räystäiden ansiosta tuulisilla ja lumisilla paikoilla räystäät suojaavat seiniä ja hirsirakennukset kestävät pitkään. Pitkät räystäät kestävät kovan tuuli- ja lumikuorman koska ne on tehty 42x145 lapin punahongasta.
Laadukas rakenne suunniteltu kestämään pohjoisen olosuhteet: LP Garden -pihavarastot pohjautuvat perinteisiin ja hyväksi todettuihin hirsirakentamisen periaatteisiin. Vuosisatojen aikana toimiviksi todetut ratkaisut on yhdistetty nykyaikaiseen suunnitteluun, jotta lopputulos on kestävä, käytännöllinen ja pitkäikäinen. Kaikki rakennuksemme on suunniteltu pohjoisen lumi- ja tuulikuormille. Lumikuormakestävyys laskettu 300 kg/m2 ja tuulikuorma mitoituksena olemme käyttäneet 1,0kN/m2. Tavoitteemme on tarjota laadukas ja kestävä hirsirakennus järkevään hintaan.
Markkinoiden korkein vakiona: LP Garden -pihavarastoissa on huomioitu käyttäjä ystävällisyys. Valmistamme rakennukset markkinoiden korkeimmilla sisäkorkeuksilla 2000 mm seinän laidalta mitattuna. Vapaa sisätila harjan kohdalla 3345 mm joka luo pihavarastoon ilmavan sisätilan.
Reilun kokoinen ovi – helppoa käyttöä arjessa: LP Garden -pihavaraston puuovet ovat markkinoiden korkeimmat vakiona, reilun kokoinen pariovi tekee varastoinnista vaivatonta.
Toimenpidelupa: LP Garden U-XXL (25m2) voi rakentaa toimenpideluvalla. Rakennuslupamääräykset mahdollistavat rakentamisen ilmoitusluvalla alle 30m2 talousrakennuksille, kun huomioit seuraavat asiat:- Tontilla käyttämätöntä rakennusoikeutta.- Pidät lainvaatiman 4m säännön rajaan.- Jos tontti sijaitsee vesistön äärellä on tarkistettava rakennusmääräykset rannan osalta.
Käsittele ja viimeistele oman tyylisi mukaan: LP Garden -pihavaraston voit viimeistellä juuri omaan piha- tai mökkiympäristöösi sopivaksi ja oikeilla väreillä. Käsittele puunsuoja-aineella tai maalaa peittävällä puunsuoja värillä. Maalilla käsitellessä muistathan että, piharakennusten hirret on höylätty ja maalin pysyvyys on haasteellinen. Perehdy maalitehtaiden ohjeisiin, ettei maalipinta lohkeile pois. Halutessasi voit tehdä piharakennuksesta myös pihapiirin katseenvangitsijan rohkeammilla väreillä tai korostamalla ovea erillisellä sävyllä.
LP Garden – markkinoiden jämerin lattiapaketti piharakennuksiin (tilattavissa lisävarusteena): LP Gardenin piharakennusten lattiapaketti on suunniteltu kestämään pohjoisen vaativia olosuhteita ja tarjoaa markkinoiden jämerimmän ja tukevimman lattiarakenteen piharakennuksiin. Paketissa niskat ja pintalaudat valmistetaan 42 × 145 mm vahvasta Lapin punahongasta, joka tunnetaan erinomaisesta lujuudestaan, mittapysyvyydestään ja pitkäikäisyydestään. Lattiapakettiin sisältyvät myös palkkikengät sekä kaikki tarvittavat ruuvit ja ankkurinaulat, mikä tekee asennuksesta nopeaa ja vaivatonta. Pintalaudat asennetaan 5–8 mm raoilla, mikä varmistaa hyvän ilmanvaihdon ja estää kosteuden kerääntymisen rakenteisiin. LP Gardenin lattiapaketti yhdistää vahvan rakenteen, laadukkaat materiaalit ja helpon asennettavuuden, tarjoten pitkäikäisen ja luotettavan ratkaisun jokaiselle piharakennukselle.
Jämäkkä perustuspaketti (tilattavissa lisävarusteena): Perustuspaketissa toimitamme lujitemuoviset säätöjalat ja betonilaatat. Säätöjalkojen puristuslujuus on parempi kuin harkkoperustan. Säädettävyydellä pystytään tasaamaan maapohjan epätasaisuuksia. Asentaminen on helppoa ja nopeaa ja mikäli routa talven jäljiltä muokkaa maapohjaa on rakennuksen säätäminen suoraan helppoa.
Katemateriaalit (tilattavissa lisävarusteena): Saatavilla on täydellinen peltikatepaketti, joka sisältää katteen lisäksi harja- ja päätypellit sekä tarvittavat kiinnitysruuvit. Katteen väri on valittavissa useista vaihtoehdoista: Musta (RR33), tummanruskea (RR32), punainen (RR29) tai grafiitinharmaa (RR23). Profiilina käytämme R-20 profiilia joka ruuvataan suoraan puuosatoimituksessa kuuluviin kattoniskoihin kiinni. Peltikattopaketit saatavilla myös kondenssisuojauksella. Kondenssisuojaus estää veden tiivistymisen ilmojen vaihdellessa pellin sisäpintaan. Toteutamme kondenssisuojauksen DRIPSTOP antikondenssipinnoite eli kondenssisuojaus on kiinni pellin alapinnassa jolloin ei tarvita ristiin koolausta ja erillistä aluskatetta. Saatavilla on myös täydellinen Palahuopakatepaketti, joka sisältää katteen lisäksi harja- ja räystäshuovat sekä räystäspellit. Palahuopakatteen mukana toimitamme myös raakaponttilaudat. Kiinnitystarvikkeet eivät kuulu mukaan koska naulapyssyjä on useita malleja. Katteen väri on valittavissa useista vaihtoehdoista: Musta, tummanruskea, punainen tai tummanharmaa.




