












Produktkod (SKU): 4100530
EAN: 6424110251055
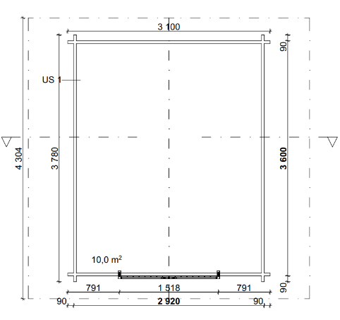
LP Garden U-M är ett traditionellt och snyggt 10,5 m² gårdsförråd med sneda väggar. Det lämpar sig utmärkt för förvaring av ved, trädgårdsredskap, cyklar och säsongsvaror samt som hobbyrum. Tillverkat av 42 mm norrländsk furu (Lapin punahonka). En rejäl dubbeldörr gör förvaringen smidig.
Furu som byggmaterial: Den norrländska furuns hållbarhet grundar sig på långsam tillväxt, vilket syns i de täta årsringarna. Den furu vi använder är avsevärt mer hållbar som byggmaterial än snabbväxt tall från sydligare breddgrader.
Långa takfötter – skyddar väggarna mot snö och regn: LP Garden-gårdsförråd har långa takfötter och gavlar. Tack vare de långa takfötterna skyddas väggarna på vindutsatta och snörika platser, vilket gör att timmerbyggnaden håller länge. De långa takfötterna tål hög vind- och snöbelastning eftersom de är tillverkade av 42x145 mm norrländsk furu.
Högkvalitativ konstruktion designad för nordiska förhållanden: LP Garden-gårdsförråden baseras på traditionella och beprövade principer för timmerbyggande. Lösningar som fungerat i århundraden har kombinerats med modern design för ett resultat som är hållbart, praktiskt och långlivat. Alla våra byggnader är dimensionerade för nordiska snö- och vindlaster. Snölastkapaciteten är beräknad till 300 kg/m2 och vindlasten till 1,0 kN/m2. Vårt mål är att erbjuda en högkvalitativ och hållbar timmerbyggnad till ett rimligt pris.
Marknadens högsta som standard: I LP Garden-gårdsförråden har användarvänligheten prioriterats. Vi tillverkar byggnaderna med marknadens högsta invändiga takhöjder, 2000 mm mätt vid väggens kant. Fri invändig höjd vid nocken är 2765 mm, vilket skapar en luftig atmosfär i förrådet.
Rejäl dörr – enkel att använda i vardagen: Trädörrarna i LP Garden-gårdsförråden är marknadens högsta som standard, och den rejäla dubbeldörren gör in- och utlastning bekymmersfri.
Bygglov och anmälan: LP Garden U-M (10,5 m2) kan ofta byggas med förenklat förfarande. Kontrollera alltid lokala byggregler gällande komplementbyggnader under 30 m2 (t.ex. Attefallshus-regler) och beakta:- Att det finns byggrätt kvar på tomten.- Avstånd till tomtgräns (ofta 4,5 m utan grannens medgivande).- Särskilda bestämmelser om tomten ligger nära vatten.
Behandla och färdigställ efter egen stil: Du kan ytbehandla ditt LP Garden-gårdsförråd så att det passar perfekt i din trädgårds- eller stugmiljö. Använd träskyddsmedel eller måla med täckande färg. Vid målning, tänk på att timret är hyvlat, vilket kan påverka vidhäftningen. Följ färgfabrikantens anvisningar noggrant för att undvika att färgen flagar. Du kan även göra byggnaden till ett blickfång med djärva färger eller genom att framhäva dörren med en kontrasterande nyans.
LP Garden – marknadens robustaste golvpaket (tillval): Golvpaketet för LP Gardens gårdsbyggnader är konstruerat för att tåla krävande nordiska förhållanden. Golvreglar och golvplankor tillverkas av 42 × 145 mm stark norrländsk furu, känd för sin styrka och formstabilitet. Paketet innehåller även balkskor samt alla nödvändiga skruvar och ankarspik, vilket gör monteringen snabb. Golvplankorna monteras med 5–8 mm springor för att säkerställa god ventilation och förhindra fuktansamling.
Stabilt grundpaket (tillval): I grundpaketet levererar vi justerbara fötter av glasfiberarmerad plast och betongplattor. Justerfötternas tryckhållfasthet är bättre än en traditionell grund av murblock. Tack vare justerbarheten kan ojämnheter i marken enkelt jämnas ut, även om marken rör sig på grund av tjäle.
Takmaterial (tillval): Ett komplett plåttakspaket finns tillgängligt, vilket inkluderar nock- och gavelplåtar samt monteringsskruv. Färgen på plåttakfärg kan väljas mellan flera alternativ: Svart (RR33), mörkbrun (RR32), röd (RR29) eller grafitgrå (RR23). Vi använder R-20 profil som skruvas direkt i takstolarna. Plåttakpaketen finns även med kondensskydd (DRIPSTOP antikondensbeläggning) som förhindrar att vatten kondenseras på plåtens undersida. Vi erbjuder även kompletta paket med takshingel, inklusive nock- och takfotsplattor samt takfotsplåt. Vid val av shingel levereras även råspont. Spik ingår ej då olika spikpistolsmodeller kräver olika typer.




| Produkt | |
| Service och leverans |
| Produkt | |
| Service och leverans |
| Produkt | |
| Service och leverans |